11/12, Khetra Bannerjee Lane, Howrah - 711106


Sitemap of Ashoka Southwinds

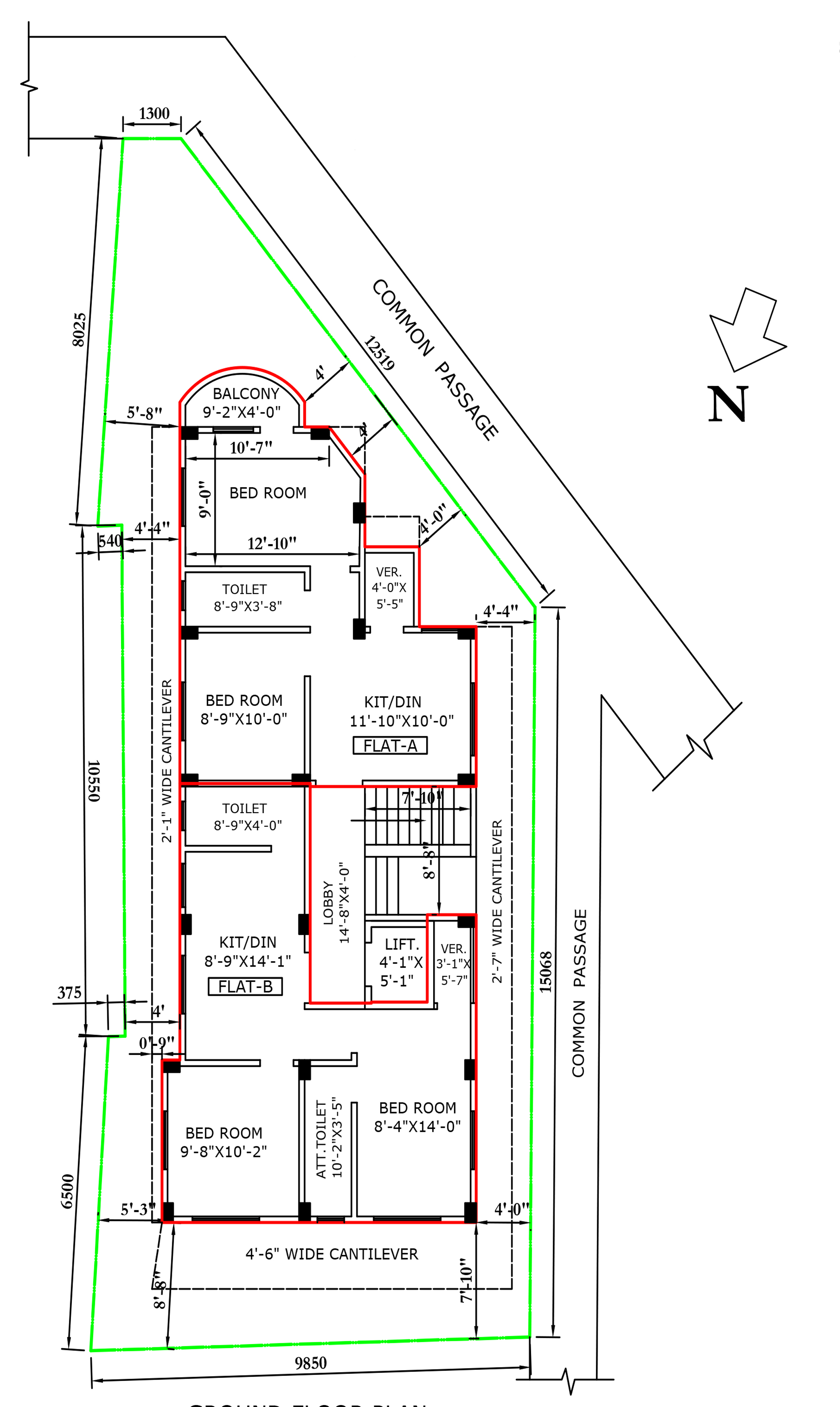
Ashoka Southwinds

The project is built by keeping your dreams in mind as a priority. The finest quality of lifestyle with all-in-one features gives the structure a required attention. The beautiful interiors of the apartments give a luxurious experience.

Description:

  • Types of Flats: 1 | 2 | 3 BHK Apartments

Amenities and Features:

  • Vaastu enriched lifestyle residences
  • Eco-friendly projects
  • Under CCTV surveillance
  • Wi-Fi enabled building
  • Parking available

Location Advantage:

  • Conveniently located with good connectivity
  • Close proximity to educational institutes, healthcare providers, banks, bazaars, malls
  • 2-3min from Mandirtala and Nabanna

Construction Specification:

  • STRUCTURE: Earthquake Resistant RCC based Composite Structure.
  • WALLS: 250mm/ 125mm/ 75mm thick Brick Wall with Plaster External and Internal.
  • FLOORS: 2*2 Vitrified Tiles with 4ā€ Skirting.
  • KITCHEN: 2*2 Vitrified Tiles Flooring, Granite Counter Top with Sink Glazed Tiles up to 2ft above the Counter.
  • TOILET: Vitrified Tiles. Glazed Tiles up to 7ft Height. Hot & Cold Concealed Lines.
  • MAIN DOOR: Flush Door Polished / Compressed Ply Factor Made Panel Type with Night Latch.
  • OTHER DOORS: Flush Type Factory Made Compressed Ply, Oil Painted.
  • WINDOWS: Aluminium Glass Window with Oil Painted Grill.
  • INTERNAL FINISH: Plaster of Paris.
  • EXTERNAL FINISH: Weather Coated Paint with appropriate Fascia.
  • SANITATION: Good Quality Ceramic Ware, Commode, and Wash Basin, Chromium Plated Fittings.
  • ELECTRICALS: Concealed Copper Wiring with MCSB and Piano Type Switches.
  • WATER SUPPLY: Municipality Water Supply with Pump to Over-Head Reservoir as will be sanctioned by the Authorities.
  • Lift: Passenger Lift of reputed make in the building.

Work Gallery

//whatsapp floater code
WhatsApp
Ashoka Homes AI āœ–
šŸ‘‹ Hi! I’m your AI assistant. How can I help you?
Continue on WhatsApp